DESCRIPTION
PROJECT NAME
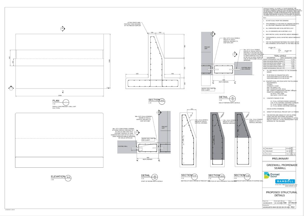
Sea Defence Wall
LOCATION
Greenhill Promenade – Weymouth – Dorset
PRODUCTS
Precast Concrete Retaining Wall
SIZE
40m
DESCRIPTION
As part of the works to protect the promenade, we were commissioned to produce the elements for the sea defence wall.



